冠成金屬工程有限公司、駿興鋼鋁工程行冠成金屬工程有限公司、駿興鋼鋁工程行

 
  • 公司簡介
  • 鐵件類工程
    • 水溝蓋、人孔蓋及格柵蓋工程
      • 中和住宅案化妝蓋
      • 永運案人孔蓋
      • 永運案水溝蓋
      • 永運案格柵蓋
      • 林口住宅案格柵蓋
      • 新莊住宅案水溝蓋
    • 扶手及欄杆工程
      • 三重住宅案玻璃欄杆
      • 中和公園案欄杆
      • 內湖住宅案欄杆
      • 北市住宅玻璃欄杆
      • 永康段住宅案欄杆
      • 永運案扶手
      • 永運案玻璃欄杆
      • 永運案欄杆
      • 林口住宅案扶手
      • 林口住宅案欄杆
      • 長安東住宅案扶手
      • 雲林科技廠扶手
      • 新莊住宅案樓梯木質扶手
      • 新莊國小案欄杆
      • 遠雄住宅案欄杆
    • 其他造型工程
      • 三重住宅曬衣架
      • 車站賣場造型牆
    • 爬梯及水箱蓋工程
      • 永運案爬梯及水箱蓋
      • 林口住宅案爬梯及滑動式水箱蓋
      • 新莊國小案爬梯及水箱蓋
    • 雨遮、採光罩及鐵皮工程
      • 三重住宅玻璃雨遮
      • 士林民房採光罩汰換
      • 內湖民房採光罩汰換
      • 內湖電視台鋼構雨遮
      • 北市民防雨遮汰換
      • 石碇民防鐵皮換新
      • 桃園工地雨遮工程
      • 基隆民房鐵皮汰換
      • 新店民房採光罩汰換
      • 楊梅置物間鐵皮屋換新
    • 鋼架及夾層工程
      • 土城科技案鋼架平台
      • 內湖科技廠案鋼架踏板
      • 木柵酒窖夾層
      • 林口住宅夾層
      • 林口住宅空橋平台
      • 新莊住宅高架踏板
      • 機場大型鋼架
      • 醫院貓道鋼架
    • 鋼梯工程
      • 三重住宅龍骨鋼梯
      • 木柵酒窖懸臂梯
      • 車站大樓健身房龍骨鋼梯
      • 林口住宅鋼梯
  • 包板類工程
    • 不鏽鋼包板工程
      • 捷運車站天窗不鏽鋼包板
    • 鋁包板工程
      • 北市住宅露 台鋁包板
      • 車站電扶梯鋁包板
      • 板橋空橋鋁包板
  • 門窗類工程
    • 檢修門工程
      • 永運案檢修門
      • 新莊住宅案檢修門
    • 鐵門及自動門工程
      • 中華電信案不銹鋼門
      • 中華電信案自動軌道大門
      • 中影案自動軌道大門
      • 內湖賣場玻璃門
      • 新竹賣場自動門
      • 新店豪宅玻璃門
      • 遠雄案大門自動鐵門
    • 鐵捲門工程
      • 中和住宅案鐵捲門
      • 中華電信案鐵捲門
    • 鐵窗工程
      • 板橋民房採光罩及鐵窗工程
      • 南港民房鐵窗工程
  • 補強類工程
    • 永和民房結構補強
    • 汐止國小結構補強
    • 桃園廠房結構補強
  • 其他類工程
    • 工程施工圖面繪製
      • 三重住宅玻璃雨遮
      • 土城科技案鋼架平台圖面繪製
      • 住宅欄杆圖面繪製
      • 新莊住宅高架踏板圖面繪製
      • 機場鋼架圖面繪製
  • 最新消息
  • 聯絡我們
冠成金屬工程有限公司、駿興鋼鋁工程行
  1. 回首頁 > 
  2. 其他類工程 >
  3. 工程施工圖面繪製

工程施工圖面繪製

其他類工程

  • 工程施工圖面繪製
    • 三重住宅玻璃雨遮
    • 土城科技案鋼架平台圖面繪製
    • 住宅欄杆圖面繪製
    • 新莊住宅高架踏板圖面繪製
    • 機場鋼架圖面繪製

三重住宅玻璃雨遮查看本類別所有產品

  • 三重住宅玻璃雨遮01

    三重住宅玻璃雨遮01

土城科技案鋼架平台圖面繪製查看本類別所有產品

  • 土城科技案鋼架平台圖面繪製01

    土城科技案鋼架平台圖面繪製01

住宅欄杆圖面繪製查看本類別所有產品

  • 住宅欄杆圖面繪製01

    住宅欄杆圖面繪製01

新莊住宅高架踏板圖面繪製查看本類別所有產品

  • 新莊住宅高架踏板圖面繪製01

    新莊住宅高架踏板圖面繪製01

機場鋼架圖面繪製查看本類別所有產品

  • 機場鋼架圖面繪製02

    機場鋼架圖面繪製02

  • 機場鋼架圖面繪製01

    機場鋼架圖面繪製01


image.png 三重住宅玻璃雨遮

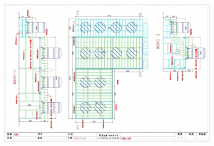
image.png 土城科技案鋼架平台圖面繪製

image.png 住宅欄杆圖面繪製

image.png 新莊住宅高架踏板圖面繪製

image.png 機場鋼架圖面繪製

 

 

  • 公司簡介
  • 鐵件類工程
  • 包板類工程
  • 門窗類工程
  • 補強類工程
  • 其他類工程
  • 最新消息
  • 聯絡我們
聯絡資訊
  • 電話 : 02-2653-0183、0960-644680
  • 傳真 : 02-2654-8862
  • 住址 : 台北市南港區研究院路四段196之1號
  • 信箱 :  shakewinder@gmail.com
追蹤分享
累積人氣 :

Service by 中華黃頁 SuperhiPage

  • 回首頁

    搜尋產品

    searching-icon